Tamjeyert, Dadès

Roger Mimó :

LE PATRIMOINE ARCHITECTURAL DU SUD DU MAROC

Hôtel Tomboctou, Tinghir

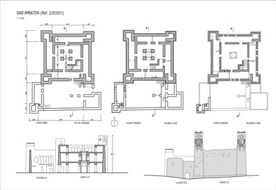
Inventaire architectural du Sud du Maroc > L’oasis de Skoura > Imraten, Oulad Bouceta

Imraten, Oulad Bouceta

GPS : 31º 02,145’ N, 06º 35,135’ W.

Typologie : maison fortifiée.

Date de construction : fin du XIXe siècle.

État de conservation en 2025 : en ruine.

Photos actuelles :

Imraten, Oulad Bouceta
Youssef Moustaader
Imraten, Oulad Bouceta
Youssef Moustaader
Imraten, Oulad Bouceta
Youssef Moustaader
Imraten, Oulad Bouceta
Youssef Moustaader
Imraten, Oulad Bouceta
Youssef Moustaader
Imraten, Oulad Bouceta
Youssef Moustaader
Imraten, Oulad Bouceta
Youssef Moustaader
Imraten, Oulad Bouceta
Youssef Moustaader

Photos anciennes :

Imraten, Oulad Bouceta
UPV/CERKAS, 2002
Imraten, Oulad Bouceta
UPV/CERKAS, 2002
Imraten, Oulad Bouceta
Roger Mimó, 2012

Dessins et croquis :

Imraten, Oulad Bouceta
UPV/CERKAS
Monument antérieur Monument suivant
Biographie de Roger Mimó Qu’est-ce qu’une kasbah? Loger dans une ancienne kasbah. Kasbahs en vente. Livres de Roger Mimó.
Oeuvres de la famille de Roger MimŽoacute; Les montagnes du Maroc. La route des mille kasbahs. Tinghir et la vallée du Todra Le voyage d’Ali Bey.

Contact avec l’auteur : E-mail de Roger Mimó.

© Roger Mimó. Version française : Marc Belin.