Tamjeyert, Dadès

Roger Mimó :

LE PATRIMOINE ARCHITECTURAL DU SUD DU MAROC

Hôtel Tomboctou, Tinghir

Inventaire architectural du Sud du Maroc > L’oasis de Skoura > El Mellah ou Aït Brahim, Roha

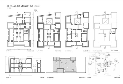
El Mellah ou Aït Brahim, Roha

Typologie : maison fortifiée.

Date de construction probable : XIXe siècle.

Information historique : elle appartenait à des Juifs qui ont émigré en 1967.

État de conservation en 2022 : assez bon.

Photos actuelles :

El Mellah ou Aït Brahim, Roha
UPV/CERKAS
El Mellah ou Aït Brahim, Roha
UPV/CERKAS
El Mellah ou Aït Brahim, Roha
UPV/CERKAS

Dessins et photos anciennes :

El Mellah ou Aït Brahim, Roha
UPV/CERKAS
Monument antérieur Monument suivant
Biographie de Roger Mimó Qu’est-ce qu’une kasbah? Loger dans une ancienne kasbah. Kasbahs en vente. Livres de Roger Mimó.
Oeuvres de la famille de Roger MimŽoacute; Les montagnes du Maroc. La route des mille kasbahs. Tinghir et la vallée du Todra Le voyage d’Ali Bey.

Contact avec l’auteur : E-mail de Roger Mimó.

© Roger Mimó. Version française : Marc Belin.