Tamjeyert, Dadès

Roger Mimó :

LE PATRIMOINE ARCHITECTURAL DU SUD DU MAROC

Hôtel Tomboctou, Tinghir

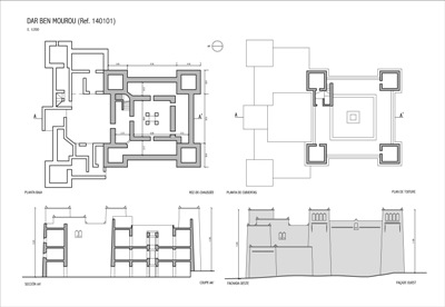
Inventaire architectural du Sud du Maroc > L’oasis de Skoura > Ben Moro, Taskoukamt

Ben Moro, Taskoukamt

GPS : 31º 02,595’ N, 06º 34,590’ W.

Typologie : maison fortifiée.

Date de construction : XVIIIe siècle d’après les propriétaires actuels.

État de conservation en 2025 : excellent. Elle a été restaurée en 1998.

Photos actuelles :

Ben Moro, Taskoukamt
Youssef Moustaader
Ben Moro, Taskoukamt
Youssef Moustaader
Ben Moro, Taskoukamt
Youssef Moustaader
Ben Moro, Taskoukamt
Youssef Moustaader

Photos anciennes :

Ben Moro, Taskoukamt
1929
Ben Moro, Taskoukamt
Vers 1950
Ben Moro, Taskoukamt
Roger Mimó, 1990
Ben Moro, Taskoukamt
Roger Mimó, 1996
Ben Moro, Taskoukamt
Roger Mimó, 1999
Ben Moro, Taskoukamt
Roger Mimó, 2014
Ben Moro, Taskoukamt
Roger Mimó, 2014
Ben Moro, Taskoukamt
Roger Mimó, 2014
Ben Moro, Taskoukamt
Roger Mimó, 2014
Ben Moro, Taskoukamt
Roger Mimó, 2014

Croquis :

Ben Moro, Taskoukamt
UPV/CERKAS
Monument antérieur Monument suivant
Biographie de Roger Mimó Qu’est-ce qu’une kasbah? Loger dans une ancienne kasbah. Kasbahs en vente. Livres de Roger Mimó.
Oeuvres de la famille de Roger MimŽoacute; Les montagnes du Maroc. La route des mille kasbahs. Tinghir et la vallée du Todra Le voyage d’Ali Bey.

Contact avec l’auteur : E-mail de Roger Mimó.

© Roger Mimó. Version française : Marc Belin.