Tamjeyert, Dadès

Roger Mimó :

LE PATRIMOINE ARCHITECTURAL DU SUD DU MAROC

Hôtel Tomboctou, Tinghir

Inventaire architectural du Sud du Maroc > L’oasis de Skoura > Dar Al Madani, Roda

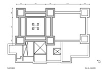
Dar Al Madani, Roda

Typologie : maison fortifiée.

Date de construction : deuxième moitié du XIXe siècle, par une famille originaire du Haut Atlas.

État de conservation en 2022 : dégradée.

Photos actuelles :

Dar Al Madani, Roda
UPV/CERKAS
Dar Al Madani, Roda
UPV/CERKAS

Dessins et croquis :

Dar Al Madani, Roda
UPV/CERKAS
Dar Al Madani, Roda
UPV/CERKAS
Dar Al Madani, Roda
UPV/CERKAS
Monument antérieur Monument suivant
Biographie de Roger Mimó Qu’est-ce qu’une kasbah? Loger dans une ancienne kasbah. Kasbahs en vente. Livres de Roger Mimó.
Oeuvres de la famille de Roger MimŽoacute; Les montagnes du Maroc. La route des mille kasbahs. Tinghir et la vallée du Todra Le voyage d’Ali Bey.

Contact avec l’auteur : E-mail de Roger Mimó.

© Roger Mimó. Version française : Marc Belin.