Tamjeyert, Dadès

Roger Mimó :

LE PATRIMOINE ARCHITECTURAL DU SUD DU MAROC

Hôtel Tomboctou, Tinghir

Inventaire architectural du Sud du Maroc > L’oasis de Skoura > Aït Abou Jdida, Tajanat

Aït Abou Jdida, Tajanat

GPS : 31º 06,140’ N, 06º 34,870’ W.

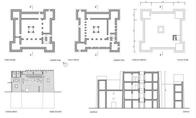
Typologie : maison fortifiée.

Date de construction : Début du XXe siècle

État de conservation en 2025 : en ruine.

Photos actuelles :

Aït Abou Jdida, Tajanat
Youssef Moustaader
Aït Abou Jdida, Tajanat
Youssef Moustaader
Aït Abou Jdida, Tajanat
Youssef Moustaader
Aït Abou Jdida, Tajanat
Youssef Moustaader

Dessins et photos anciennes :

Aït Abou Jdida, Tajanat
UPV/CERKAS
Aït Abou Jdida, Tajanat
UPV/CERKAS, 2002
Aït Abou Jdida, Tajanat
UPV/CERKAS, 2002
Aït Abou Jdida, Tajanat
UPV/CERKAS, 2002
Aït Abou Jdida, Tajanat
UPV/CERKAS, 2002
Aït Abou Jdida, Tajanat
UPV/CERKAS, 2002
Aït Abou Jdida, Tajanat
UPV/CERKAS, 2002
Monument antérieur Monument suivant
Biographie de Roger Mimó Qu’est-ce qu’une kasbah? Loger dans une ancienne kasbah. Kasbahs en vente. Livres de Roger Mimó.
Oeuvres de la famille de Roger MimŽoacute; Les montagnes du Maroc. La route des mille kasbahs. Tinghir et la vallée du Todra Le voyage d’Ali Bey.

Contact avec l’auteur : E-mail de Roger Mimó.

© Roger Mimó. Version française : Marc Belin.